Hanko, Puistokatu 12
116/116 m² 3h+k+wc+kph+3 vinttihuonetta+terassi
Historian hurmaa, korkeita huoneita, ruutuikkunoita ja esiin jätettyjä hirsipalkkeja – olisiko tässä unelmiesi Hanko-koti? Tässä asunnossa on helppo astua ajassa sata vuotta taaksepäin ja kuvitella itsensä viettämään leppoisia kesäpäiviä Hangon kylpylävieraiden sekaan.
Koko taloyhtiö on remontoitu perusteellisesti noin 15 vuotta sitten, jolloin mm. uusittiin julkisivut, ikkunat, ovet, sähköt, pinnat, keittiöt ja kylpyhuoneet joka asuntoon. Nykyiset asukkaat ovat lisänneet tunnelmaa tarkkaan valituilla tapeteilla, joten sinun ei tarvitse kuin muuttaa sisään.
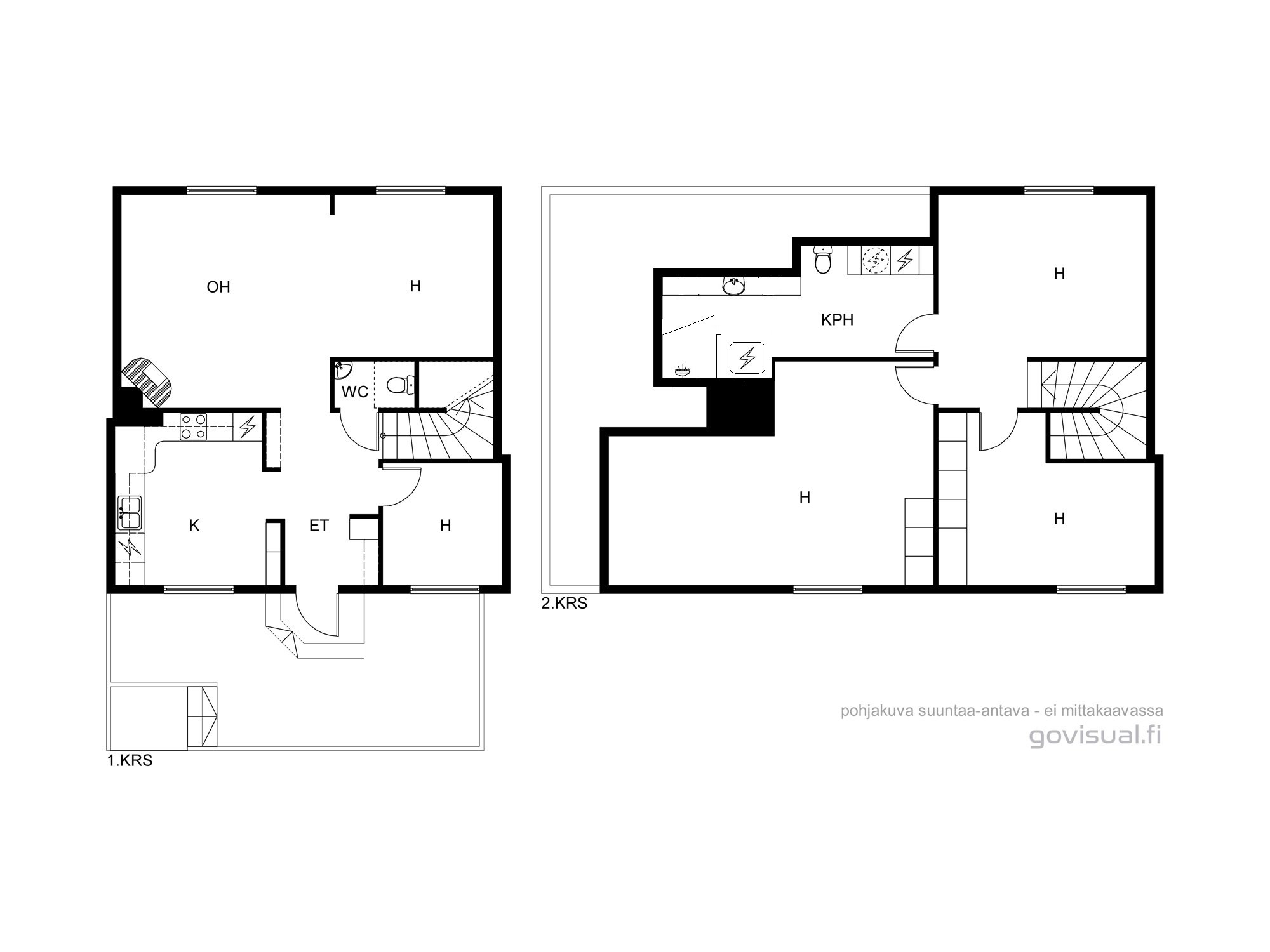
Alakerrassa on varsinaiset asuintilat: luonnonvalossa kylpevä tunnelmallinen olohuone ja ruokasali, kotoisa keittiö, erillinen wc ja pikku huone makuutilaksi tai vaikka työhuoneeksi. Yläkerrassa on kolme ullakkohuonetta vinokattojen alla – täällä nukkuu isompikin porukka! Yläkerrassa on myös huvilahenkeen sopiva kylpyhuone ja kodinhoitotila.
Asunnon edustalla on tilava terassi, jolle mahtuu hyvin niin ruokaryhmä kuin löhötuolitkin. Terassi jää taloyhtiön suojaisan sisäpihan puolelle, josta löytyy myös pihasauna. Pihalla riittää tilaa temmeltää ja nauttia vapaa-ajasta.
Talo on rakennettu vuonna 1890. Rakennuksen julkisivut on jäsennelty pilastereilla ja palkistoikkunoilla. Se edustaa 1800-luvun lopun asuinrakentamista ja on hieno osa Kylpyläpuiston puutalomiljöön katunäkymiä.
Sovi oma esittelysi ja tule ihastumaan!
Unelmakauppias Nana
Puh. 0400942052
nana@himajahuvila.fi
Kohdetta välittää
- Nana Hyry
- 0400 942052
- nana@himajahuvila.fi
PERUSTIEDOT
| Sijainti | Puistokatu 12 , 10900 Hanko |
| Kaupunginosa | Kylpyläpuisto |
| Kohdenumero | 80443491 |
| Kerros | 1/2 |
| Asuinpinta-ala | 116 m² |
| Tontin pinta-ala | 2148 m² |
| Kokonaispinta-ala | 116 m² |
| Pinta-alojen lisätiedot | Yhtiöjärjestyksen mukainen ja isännöitsijäntodistuksen mukainen |
| Huoneiston kokoonpano | 3h+k+wc+kph+3 vinttihuonetta+terassi |
| Huoneita | 3 |
| Kunto | Hyvä |
| Keittiö | Tunnelmallisessa ja valoisassa keittiössä on korkea ruutuikkuna sisäpihalle päin. Valkoiset kaapistot sopivat hyvin vanhan talon henkeen. Varusteisiin kuuluu integroitu jääkaappi-pakastin (n. 3v vanha), integroitu astianpesukone (n. 3v vanha), keraaminen liesi, uuni ja liesituuletin (suodattimella). Työtasot puuta, välitila laattaa. Lattia parkettia, seinät maalattu. |
| Parveke | Ei |
| Kylpyhuone | Yläkerran kylpyhuoneessa on ihanaa huvilatunnelmaa: vinokattoja, valkoista puupaneelia, esiin jätettyjä hirsipalkkeja ja puiset tasot pesualtaan alla ja kodinhoitopisteessä. Vanhat kalusteetkin istuvat tänne täydellisesti - tämän kylpyhuoneen voi todellakin sisustaa! Lattia laattaa, seinät maali/kaakeli. Suihkulle on oma syvennyksensä. Varusteisiin kuuluu wc-istuin, pk-liitäntä, suihku, suihkuseinä, pesuallas ja taso sekä työtaso. Sähköinen lattialämmitys. |
| Tulevat remontit | 1. Korsmaninkadun puoleisen katon kattoremontti (sis. kattotuolin kunnostus, lämpöeristyksen tarkistus, ilmanvaihdon parantaminen, mahdollinen aluskatteen asentaminen ja peltikatteen uusiminen, lumiesteiden asentaminen) 2. Puistokadun puoleisen katon korjaustoimenpiteet Kattoremonttien kustannusarvio yht. 45.000 euroa (taloyhtiöt ottavat kattoremonttiin lainaa max 55.000 euroa) 3. Huoneiston i sisäkaton kunnostustarpeen arviointi (johtuen kattovuodosta) 4. Ilmastointikanavien huoltotarpeen arviointi ja mahdollinen puhdistus 5. Varmistetaan huoneistojen lämminvesivaraajien kunto 6. Yhtiön vastuulla olevien seinävaurioiden selvittäminen ja korjaaminen 7. Saunan kylpyhuoneen lämmityksen varmistaminen 8. Saunan vesivaraajan uusiminen tarpeen mukaan 9. Saunan hormin tarkistaminen ja mahdollinen kunnostaminen 10. Palovaroittimien tarkastaminen yhtiöiden toimesta 11. Asuinrakennuksen tuulettuvan alapohjan tuuletusluukkujen ritilöiden uusiminen 12. Kattorännien kunnon tarkistaminen |
| Tehdyt remontit | Taloyhtiön mittava remontti 2009: ulkovuoraus uusittu, ovet ja ikkunat uusittu, sähköt uusittu, kaikki pinnat uusittu huoneistoissa, uudet kylpyhuoneet ja keittiöt, terassit rakennettu. Talo maalattu ja korjattu vaihtoa tarvinneet osat 2021 Piha-aidat ja pihaa uudistettu 2025 |
| Asunnossa sauna | Ei |
| Asumistyyppi | Oma |
| Kohde on | Asunto-osake |
HINTA
| Velaton hinta | 479 000 € |
| Myyntihinta | 479 000,00 € |
| Neliöhinta | 4 129,31 €/m² |
| Lunastuspykälä | Ei |
ASUINKUSTANNUKSET
| Hoitovastike | 290 € / kk |
| Yhtiövastike | 290 € / kk |
| Muut kustannukset | As Oy Hangon Puistokatu 12 ja As Oy Hangon Silja ovat päättäneet ostaa As Oy Hangon Viikingin omistaman 1/3 määräalan. Kokonaiskustannusarvio on enintään 55000 euroa ja nyt myytävän olevan huoneiston osuus tästä on 9075 euroa. Ostaja ottaa vastattavakseen tämän kustannuksen. Lisäksi ylimääräinen yhtiökokous on 10.12.2025 päättänyt uusia Korsmanin puoleisen katon ja suorittaa tarvittavat korjaustoimenpiteet Puistokadun puoleiseen kattoon. Kustannusarvio on 45.000 euroa. Taloyhtiöt hakevat lainaa yhdessä maksimissaan 55.000 euroa kattoremonttia varten. Ostaja ottaa vastattavakseen kattoremontin kustannuksen (max 9075 euroa). |
TILAT JA MATERIAALIT
| Lisätietoja makuuhuoneen varusteista | Alakerran pieni sivuhuone toimii hyvin työhuoneena tai makuutilana. Lisäksi yläkerrassa on kaksi ihanaa ullakkohuonetta ja aulatila vinokattojen alla. Täällä komeat hirsipalkit saavat reilusti näkyä, ikkunasyvennykset ovat kuin taideteoksia ja valkoiset kattopaneelit heijastavat kauniisti luonnonvaloa ja tuovat lisää tilan tuntua. Huoneet ovat kaikki persoonallisia ja erilaisia. Lattiat parkettia, seinät tapetti/maali. |
| Olohuoneen varusteet | Upea olohuone ja viereinen ruokasali vievät ajatukset yli sadan vuoden taakse. Korkeat ruutuikkunat antavat valon tulvia sisälle ja leikkiä lattialla. Olohuoneen komistuksena on vanha kakluuni, jossa voi poltella kynttilöitä iltojen pimetessä (taloyhtiön kakluunit toistaiseksi pois käytöstä). Ruokasalin takaseinällä näyttävä huvilahenkinen tapetti. Lattia parkettia, seinät maali/tapaetti. |
| Ominaisuudet | Kohde myydään kalustettuna: Ei |
TALON JA TONTIN TIEDOT
| Uudiskohde | Ei |
| Taloyhtiön nimi | Asunto Oy Hangon Puistokatu 12 |
| Rakennuksen tyyppi | Puutalo-osake |
| Rakennusvuosi | 1890 |
| Rakennuksen käyttöönottovuosi | 1890 |
| Kerroksia | 2 |
| Hissi | Ei |
| Taloyhtiössä on sauna | Kyllä |
| Rakennusmateriaali | Hirsi |
| Kattotyyppi | Harjakatto |
| Energiatodistus | Ei lain edellyttämää energiatodistusta |
| Tontin koko | 2148 m² |
| Kattomateriaali | Pelti |
| Tontin omistus | Oma |
| Kiinteistönhoito | Huoltoyhtiö |
| Isännöitsijä | Omatoiminen, , |
| Pihan kuvaus | Taloyhtiöillä on yhteinen suojaisa ja iso piha, jossa yhteiset pihakalusteet sekä tunnelmallinen pihasauna ja varasto. Pihaa kiertää kadun puolilta puuaita - vaaleanpunainen tietenkin! |
| Lämmitys | Sähkö |
| Yhteiset tilat | Urheiluvälinevarasto |




























Svenska