HANGONKYLÄ, Sunnantie 7
160/240 m² 5h+k+3wc+kph+s-osasto+harraste- ja varastotilaa+at
Moni hankolainen muistaa Hangon Troolisataman lapsuudestaan – sieltä isät hakivat perheelleen tuoreita silakoita, kun troolarit saapuivat satamaan. Näissä tunnelmissa, punaisten kalavajojen täplittämän rannan vieressä, sijaitsee tämä komea peruskorjattu talo. Voit ihailla merta ja tutkailla satamaan saapuvia ja sieltä lähteviä aluksia omalta sohvaltasi tai kipittää parisataa metriä ja olet yhdellä Hangon salaisimmista hiekkarannoista. Tänne ei turistit eksy!
Tämä talo on merta ja merenkulkua rakastavan unelmapaikka. Meri tulee ikkunoista sisälle upeana maisemana, mutta halutessasi voit vetäytyä lasitetun terassin suojaan tai nauttia kesäpäivistä isolla avoterassilla. Terassi ja piha ovat etelään päin.
Itse talo on laadukkaasti peruskorjattu ja sopii nyt isommallekin perheelle tai vaikka kahdelle sukupolvelle sekä vakituiseen asumiseen että huolettomaan vapaa-ajan viettoon. Maalämpö tuo tasaisen lämmön ympäri vuoden ja pitää asumiskulut alhaisina, iso terassi lasituksineen kutsuu loikoilemaan ja illanviettoihin ja kellarikerrokseen rakennetut lisätilat tuovat paljon mahdollisuuksia.
Kohdetta välittää
-
Nana Hyry
-
0400 942052
-
nana@himajahuvila.fi
PERUSTIEDOT
| Sijainti |
Sunnantie 7 , 10940 HANGONKYLÄ |
| Kaupunginosa |
Gunnarsinranta |
| Kohdenumero |
80487300 |
| Kerros |
1-3 |
| Asuinpinta-ala |
160 m² |
| Tontin pinta-ala |
1129 m² |
| Kokonaispinta-ala |
240 m² |
| Huoneiston kokoonpano |
5h+k+3wc+kph+s-osasto+harraste- ja varastotilaa+at |
| Huoneita |
5 |
| Kunto |
Hyvä |
| Keittiö |
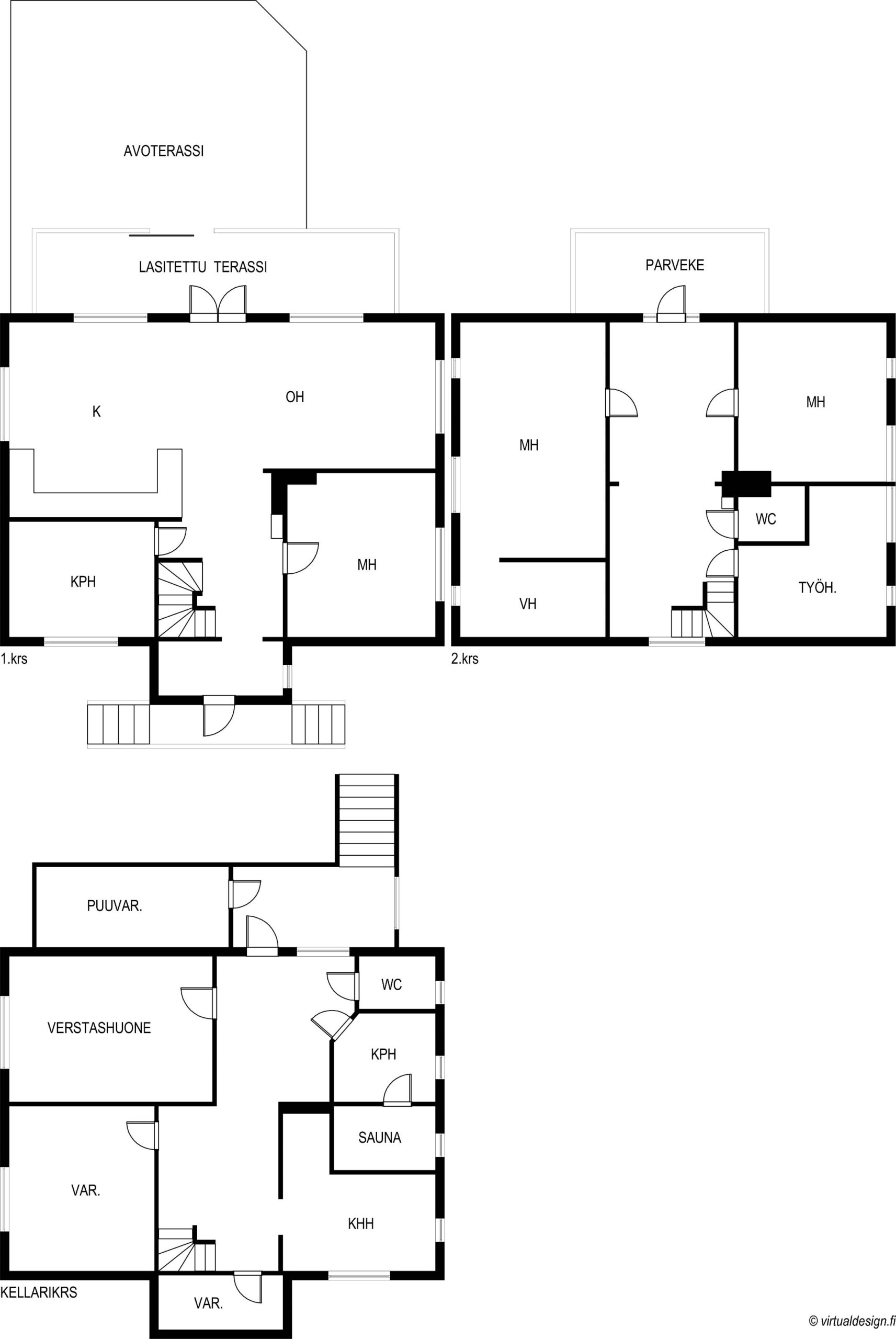
Vaalea avokeittiö on sijoitettu omaan syvennykseensä. Varusteisiin kuuluu täyskorkea jääkaappi (2023), induktioliesi, astianpesukone sekä liesituuletin (hormiin). Pöytätasojen materiaali kvartsi, tasojen syvyys 70cm. Viereiseen ruokailutilaan mahtuu pitkäkin pöytä ja sieltä aukeaa upeat maisemat Länsisatamaan. Lattia laattaa, seinät maali/kaakeli. |
| Parveke |
Kyllä |
| Parvekkeen lisätiedot |
Parvekkeen suunta:Etelä |
| Kylpyhuone |
1. kerroksen kylpyhuone on valoisa ja avara. Kääntyvät suihkuseinät ja tilava allaskaapisto. Wc-istuin. Koneellinen poistoilmatuuletin. Lattia laattaa, seinät kaakelia. Toinen kylpyhuone saunaosaston yhteydessä. Lattia laattaa, seinät kaakelia. |
| Tehdyt remontit |
Kiinteistö peruskorjattu 2010-2014 edellisen omistajan toimesta:
Salaojat tehty kellarisaneerauksen yhteydessä, talon sokkeli ja koko kellari salojitettu. Kellarin lattia uudelleen rakennettu (10cm soraa+10cm finnfoameristyslevy +8cm betonilattia)
Ikkunat ja ulko-ovet uusittu.
Kutteripurueriste seinissä ja lisäeristetty sisäpuolelta 50mm SPU-levyllä.
Autotalli rakennettu kevytlecaharkoista (sähkö ja vesi).
Viemäriputket, käyttövesiputket ja sähköt uusittu.
Eteinen rakennettu. Iso lasitettu terassi ja iso terassi etelään.
Nykyisen omistajan aikana tehdyt remontit:
Katto uusittu 2024
Asennettu aurinkopaneelit 2024
Päämakuuhuoneen pintaremontti 2024
Alakerran makuuhuoneen pintaremontti 2024
Terassi laajennettu 2025 |
| Säilytystilat |
Kellarikerroksessa reilusti säilytystilaa. |
| Asunnossa sauna |
Kyllä |
| Saunan lisätiedot |
Kiuas: Saunaosasto sijaitsee rakennuksen kellarikerroksessa. Tilaville lauteille mahtuu useampikin saunoja yhtä aikaa. Puukiuas, joka antaa erinomaiset löylyt! Lattia laattaa, seinät paneelia. |
| Kohde on |
Kiinteistö |
| Kiinteistötunnus |
78-8-802-9-L1 |
ASUINKUSTANNUKSET
| Muut kustannukset |
Valokuitu Karjaan Puhelin 50€/kk, Verisure-hälytysjärjestelmä 80€/kk, hulevesimaksu 20€/v, sähkönkulutus n.8000 kWh/v (kun talo vapaa-ajan käytössä). Kesällä mahdollisuus myydä ylijäämäsähköä. |
TILAT JA MATERIAALIT
| Lisätietoja makuuhuoneen varusteista |
Alakerrassa on yksi romanttisen roosanväriseksi remontoitu makuuhuone ja yläkerrassa kaksi pienempää huonetta sekä komea päämakuuhuone, jonka seiniä koristaa Morris & co:n upea tapetti. Päämakuuhuoneen vinokattojen alle on teetetty mittojen mukaan tyylikkäät säilytyslipastot nahkavetimillä. Lattiat parkettia, seinät maali/tapetti. |
| Olohuoneen varusteet |
Olohuone ja ruokailutila muodostavat valoisan ja avaran kokonaisuuden, josta on näkymät punaisten kalavajojen yli suoraan merelle ja Länsisatamaan. Täällä voit istuskella ja tarkkailla Hankoon saapuva ja lähteviä laivoja. Merellistä vaikutelmaa korostaa upea laivankansityylinen parketti, joka jatkuu läpi alakerran. Olohuoneessa on myös varaava takka ja käynti lasipariovista ihanalle lasitetulle terassille. Siellä viihdytäänkin jo varhain keväällä, sillä terassi on suoran etelään. Seinät maalattu. |
| Ominaisuudet |
Kohde myydään kalustettuna: Ei |
TALON JA TONTIN TIEDOT
| Uudiskohde |
Ei |
| Rakennuksen tyyppi |
Omakotitalo |
| Rakennusvuosi |
1947 |
| Rakennuksen käyttöönottovuosi |
1947 |
| Kerroksia |
3 |
| Hissi |
Ei |
| Rakennusmateriaali |
Puu/tiilivuoraus rapattu |
| Kattotyyppi |
Harjakatto |
| Energiatodistus |
Ei lain edellyttämää energiatodistusta |
| Tontin koko |
1129 m² |
| Kattomateriaali |
Pelti |
| Tontin omistus |
Vuokra |
| Maanvuokraaja |
Hangon kaupunki |
| Kaavatilanne |
Asemakaava |
| Pihan kuvaus |
Suojaisa eteläpiha, jota jyhkeät männyt vartioivat meren puolelta. |
| Lämmitys |
Maalämpö, aurinkopaneelit, koko talossa vesikiertoinen lattialämmitys, varaava takka |
| Tontin vuokra päättyy |
2038-12-31 |
| Tontin vuokra |
358 € / vuosi |
Tekniset tiedot
| Vesi ja jätevesi |
Vesijohto: |